Capannone in vendita

Acquafredda, Via Nuovo Villaggio
€ 220.000
1 locale 1 locale
720 Mq 720 Mq
3 bagni 3 bagni

Capannone in vendita

Acquafredda, Via Nuovo Villaggio

Descrizione annuncio

DESCRIZIONE E PARTICOLARITÀ

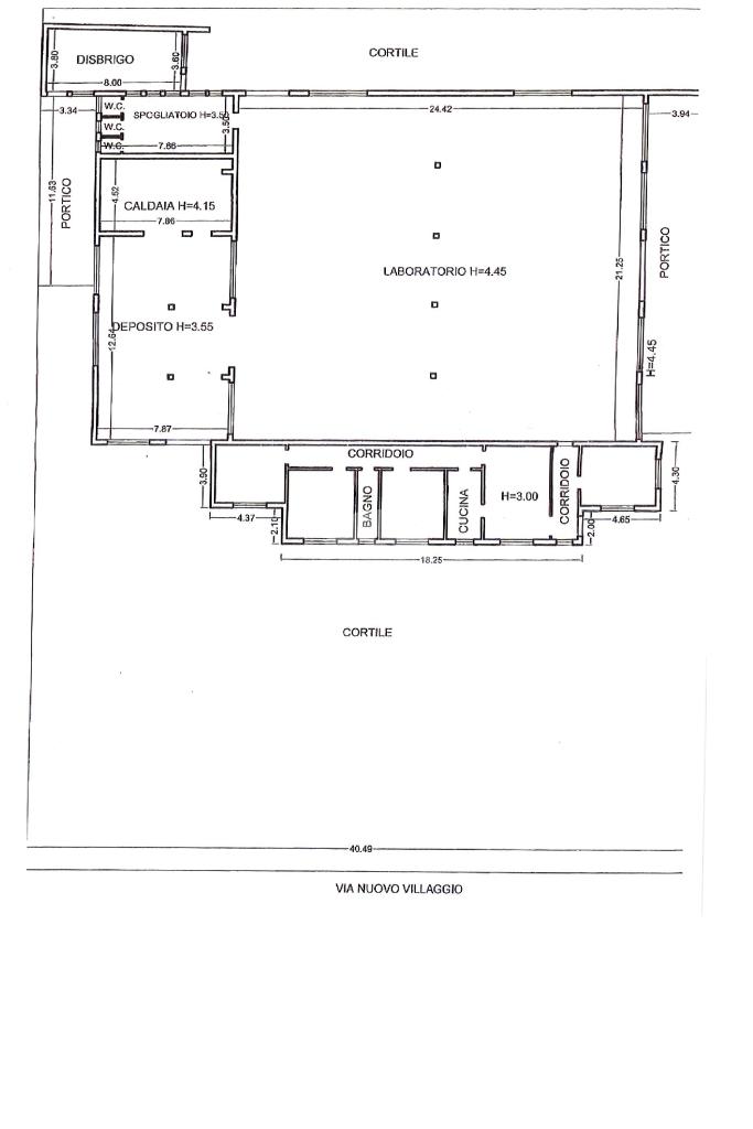
Proponiamo in vendita capannone con annessa abitazione sito in Acquafredda, precisamente in Via Nuovo Villaggio.

Il capannone in oggetto si sviluppa su una superficie interna di circa 720 mq, l’abitazione invece si estende su 110 mq circa, per un totale di coperto complessivo di 830 mq. Gli immobili si sviluppano in un’area globale di 1600 mq, completamente cintata.

Il capannone dispone di:

- 2 Locali;

- Altezza 5 m sotto trave;

- 1 Accesso carraio;

- 1 Portone d’accesso con altezza 4 m;

- Completo di tutti gli impianti (riscaldamento, condizionamento, illuminazione, elettrico);

- Proprietà cintata;

- Videosorveglianza;

- Uscita di emergenza;

- Numerosi posti auto esterni.

UBICAZIONE E CONTESTO

Il Comune di Acquafredda, situato nella bassa bresciana orientale è distribuito su una superficie esclusivamente pianeggiante. È posto territorialmente a metà strada tra Brescia e Mantova e gode di una posizione privilegiata ed è distante poco più di 15 chilometri da Desenzano del Garda.

Mostra tutto

Nelle vicinanze

Trasporto pubblico Trasporto pubblico
Trasporto pubblico
2,6 Km
Mostra tutto

Caratteristiche

Rif.:
61160084
Piano:
Terra di 1
Totale piani:
1
Posti auto:
10
Condizionamento:
Assente
Ascensore:
No
Mostra tutto
Prezzo Prezzo
€ 220.000
Rata mutuo Rata mutuo
€ 1.027 / mese
Spese annue Spese annue
€ 0
Proponi il tuo prezzoProponi il tuo prezzo

Altre caratteristiche

Descrizione dei locali
Bagno Con Finestra

Classe Energetica

Questo immobile è esente da classe energetica
Anno di costruzione:
1980
Riscaldamento:
Assente

Ti interessa visionare l'immobile?

Fissa un appuntamento  Fissa un appuntamento

Richiedi informazioni

Clicca su Leggi per aprire l'informativa
* Questi campi sono obbligatori

Calcola il tuo mutuo

Semplice e senza impegno
Anticipo

( % )
Mutuo

( % )

pochi semplici passi

inserisci i tuoi dati
Questionario completato
Grazie per aver richiesto un appuntamento senza impegno con un nostro Consulente del Credito e Assicurativo.

Hai inserito correttamente tutti i dati necessari e a breve riceverai una e-mail con un link da convalidare per inviare i tuoi dati.
Affiliato
Industriale Castiglione Srl
Viale Cavour, 19 46043 Castiglione Delle Stiviere (MN)

Il nostro staff


  • Francesca Lanzini
    Affiliata

  • Nitesh Bhatti
    Collaboratore

  • Cristian Binetti
    Collaboratore

  • Giovanni Lucignano
    Collaboratore

  • Lorenzo Migliorelli
    Collaboratore

  • Nicola Monaco
    Affiliato

  • Oxana Sirelli
    Affiliata

  • Jessica Stancato
    Coordinatrice

  • Valentina Sozzi
    Coordinatrice

  • Claudio Valecci
    Affiliato
Viale Cavour, 19 46043 Castiglione Delle Stiviere (MN)
Zona: Castiglione D/S-Montichiari-Carpenedolo-Calcinato-Ponte San Marco
Mostra su mappa
Orari: Lunedì - Venerdì: 8:30 - 12.30 / 14:30 - 19:30 Sabato: 8:30 - 12:30
Affiliato
Industriale Castiglione Srl
Viale Cavour, 19 46043 Castiglione Delle Stiviere (MN)

2026 Tecnocasa Franchising S.p.A. - P. IVA 08365160152 - Via Monte Bianco 60/A 20089 Rozzano (MI). Ogni agenzia ha un proprio titolare ed è autonoma. Privacy policy | Policy utilizzo | Cookie policy