Ufficio in affitto

Calcinato, Via S. Maria - Calcinatello
€ 2.300 / mese
Prezzo aggiornato
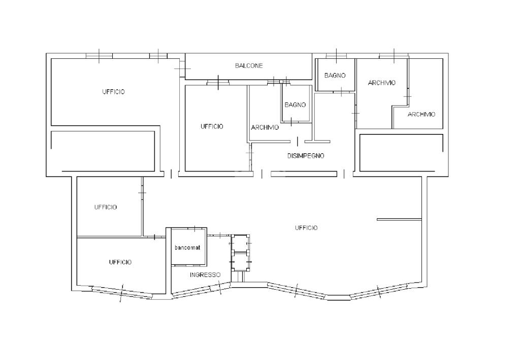
10 locali 10 locali
256 Mq 256 Mq
2 bagni 2 bagni

Ufficio in affitto

Calcinato, Via S. Maria - Calcinatello

Descrizione annuncio

DESCRIZIONE E PARTICOLARITÀ

Proponiamo in affitto un ampio e luminoso ufficio situato al primo piano di un edificio moderno, costruito nel 2000 e completamente ristrutturato nel 2022, in posizione strategica a Calcinato, più precisamente in via S. Maria.

La soluzione, completamente arredata e pronta all’uso, si estende su una superficie di 256 mq divisi in più locali, ideali per studi professionali o coworking; ottima accessibilità e grande visibilità grazie alla presenza di 4 vetrine fronte strada.

CARATTERISTICHE PRINCIPALI:

- Riscaldamento e condizionamento autonomi

- Doppio ingresso e accesso disabili

- 2 servizi igienici, di cui uno attrezzato per disabili

- Spogliatoio, porta blindata e doppio affaccio

- Controllo accessi e porta tagliafuoco

- Impianto antincendio, luci e uscite d’emergenza

- Videosorveglianza, allarme e saracinesche automatiche

- Impianto elettrico e di illuminazione a norma

- Connessione internet a banda larga

Ideale per aziende, studi associati, professionisti o realtà che cercano uno spazio elegante, funzionale e già attrezzato.

UBICAZIONE E CONTESTO

Calcinato è un vivace comune di circa 13.000 abitanti in provincia di Brescia, situato in posizione strategica tra la città e il Lago di Garda. Ben collegato alle principali arterie stradali (vicino alla tangenziale sud di Brescia, all’autostrada A4 e alla stazione ferroviaria di Ponte San Marco) e ricco di servizi, offre un contesto tranquillo ma dinamico, ideale per vivere o avviare un’attività. Il paese unisce storia, tradizione e uno sviluppo moderno, con un tessuto commerciale e artigianale attivo.

Mostra tutto

Nelle vicinanze

Trasporto pubblico Trasporto pubblico
Ponte San Marco - Calcinato
Ponte San Marco - Calcinato
2,0 Km
Ponte S. Marco
Ponte S. Marco
2,2 Km
Ricariche auto elettriche Ricariche auto elettriche
Gardauno Municipio di Calcinato
1,6 Km
Scuole Scuole
Scuole
1,3 Km
Scuola Elementare Ponte San Marco
2,0 Km
Farmacia Farmacia
Farmacia
2,0 Km
Supermercati Supermercati
EuroSpin
1,4 Km
Supermercati
2,4 Km
Negozi Negozi
3S
1,9 Km
Bar Bar
Bar Ponte
2,1 Km
Ristoranti Ristoranti
Baratello
1,7 Km
Chef Express Campagnola Ovest
2,4 Km
Sullivan
2,4 Km
Mostra tutto

Caratteristiche

Rif.:
61164905
Piano:
1 di 2 (Piano terra)
Posti auto:
10
Balconi:
1
Condizionamento:
Autonomo
Ascensore:
No
Mostra tutto
Prezzo Prezzo
€ 2.300 / mese
Spese annue Spese annue
€ 0

Altre caratteristiche

Descrizione dei locali
Bagno Con Finestra

Classe Energetica

Questo immobile è esente da classe energetica
Anno di costruzione:
2000
Riscaldamento:
Autonomo
Tipo impianto:
Ad aria
Tipo alimentazione:
Altro

Prezzo ridotto di €1 (8%%)

Ti interessa visionare l'immobile?

Fissa un appuntamento  Fissa un appuntamento

Richiedi informazioni

Clicca su Leggi per aprire l'informativa
* Questi campi sono obbligatori
Affiliato
Industriale Castiglione Srl
Viale Cavour, 19 46043 Castiglione Delle Stiviere (MN)

Il nostro staff


  • Francesca Lanzini
    Affiliata

  • Nitesh Bhatti
    Collaboratore

  • Cristian Binetti
    Collaboratore

  • Giovanni Lucignano
    Collaboratore

  • Nicola Monaco
    Affiliato

  • Oxana Sirelli
    Affiliata

  • Jessica Stancato
    Coordinatrice

  • Claudio Valecci
    Affiliato
Viale Cavour, 19 46043 Castiglione Delle Stiviere (MN)
Zona: Castiglione D/S-Montichiari-Carpenedolo-Calcinato-Ponte San Marco
Mostra su mappa
Orari: Lunedì - Venerdì: 8:30 - 12.30 / 14:30 - 19:30 Sabato: 8:30 - 12:30
Affiliato
Industriale Castiglione Srl
Viale Cavour, 19 46043 Castiglione Delle Stiviere (MN)

2026 Tecnocasa Franchising S.p.A. - P. IVA 08365160152 - Via Monte Bianco 60/A 20089 Rozzano (MI). Ogni agenzia ha un proprio titolare ed è autonoma. Privacy policy | Policy utilizzo | Cookie policy