Capannone in vendita

Calvisano, Via S. Felice
€ 239.000
2 locali 2 locali
435 Mq 435 Mq
2 bagni 2 bagni

Capannone in vendita

Calvisano, Via S. Felice

Descrizione annuncio

DESCRIZIONE E PARTICOLARITÀ

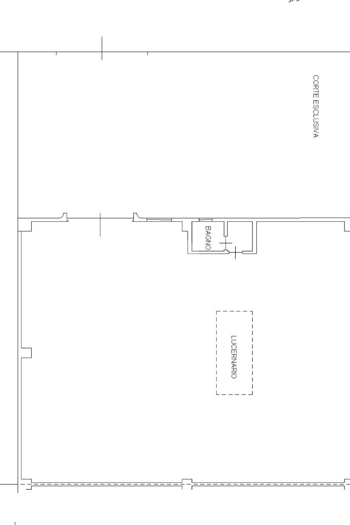
Proponiamo in vendita capannone industriale con annesso magazzino, situato nel comune di Calvisano (BS) più precisamente in via S. Felice, in posizione comoda e facilmente accessibile.

La soluzione si estende su una superficie totale di 435 mq, suddivisa in 320 mq ad uso industriale e 115 mq ad uso magazzino. All’esterno troviamo un’ampia area esterna esclusiva di 1.000 mq, ideale per manovre, carico/scarico e parcheggio.

Caratteristiche principali dell’immobile:

- Altezza interna del capannone: 7 metri

- 4 portoni industriali per un facile accesso

- Mensole predisposte per carroponte

- Spogliatoio con doccia e doppi servizi igienici

- Riscaldamento e condizionamento autonomi

- Impianto antincendio con estintori

- Sistema di allarme e videosorveglianza

- Impianto di illuminazione completo

- Posti auto esterni disponibili

Ideale per attività produttive, artigianali o logistiche. Soluzione pronta all’uso, dotata di tutte le principali dotazioni impiantistiche.

UBICAZIONE E CONTESTO

Calvisano risulta ben collegato alle principali arterie stradali della zona essendo distante soli tre chilometri dall'imbocco della trafficata Strada Provinciale ex Statale Lenese 668, importante e strategica via di collegamento e arteria di scambio commerciale tra le provincie di Milano, Bergamo, Cremona, Brescia, Mantova e Verona. Inoltre, il casello autostradale di Brescia Est dell'autostrada A4 Milano - Venezia dista soli dieci chilometri, mentre l'aeroporto Gabriele D'Annunzio di Montichiari si trova a soli sei chilometri.

Mostra tutto

Nelle vicinanze

Trasporto pubblico Trasporto pubblico
Trasporto pubblico
1,5 Km
Calvisano
Calvisano
1,4 Km
Scuole Scuole
Scuola elementare
1,2 Km
Scuole
1,6 Km
Bar Bar
Circolo ACLI
1,3 Km
Bar
2,9 Km
Ristoranti Ristoranti
Ristorante pizzeria al capriccio
670 m
Lago Solitudo
2,1 Km
Mostra tutto

Caratteristiche

Rif.:
61122438
Piano:
Terra con giardino di 1
Totale piani:
1
Posti auto:
10
Condizionamento:
Autonomo
Ascensore:
No
Mostra tutto
Prezzo Prezzo
€ 239.000
Rata mutuo Rata mutuo
€ 1.114 / mese
Spese annue Spese annue
€ 0
Proponi il tuo prezzoProponi il tuo prezzo

Altre caratteristiche

Descrizione dei locali
Bagno Con Finestra

Classe Energetica

Questo immobile è esente da classe energetica
Anno di costruzione:
2005
Riscaldamento:
Autonomo
Tipo impianto:
A radiatori
Tipo alimentazione:
Metano

Ti interessa visionare l'immobile?

Fissa un appuntamento  Fissa un appuntamento

Richiedi informazioni

Clicca su Leggi per aprire l'informativa
* Questi campi sono obbligatori

Calcola il tuo mutuo

Semplice e senza impegno
Anticipo

( % )
Mutuo

( % )

pochi semplici passi

inserisci i tuoi dati
Questionario completato
Grazie per aver richiesto un appuntamento senza impegno con un nostro Consulente del Credito e Assicurativo.

Hai inserito correttamente tutti i dati necessari e a breve riceverai una e-mail con un link da convalidare per inviare i tuoi dati.
Affiliato
Industriale Castiglione Srl
Viale Cavour, 9 46043 Castiglione Delle Stiviere (MN)

Il nostro staff


  • Francesca Lanzini
    Affiliata

  • Cristian Binetti
    Collaboratore

  • Giovanni Lucignano
    Collaboratore

  • Nicola Monaco
    Affiliato

  • Oxana Sirelli
    Affiliata

  • Jessica Stancato
    Coordinatrice

  • Claudio Valecci
    Affiliato
Viale Cavour, 9 46043 Castiglione Delle Stiviere (MN)
Zona: Castiglione D/S-Montichiari-Carpenedolo-Calcinato-Ponte San Marco
Mostra su mappa
Orari: Lunedì - Venerdì: 8:30 - 12.30 / 14:30 - 19:30 Sabato: 8:30 - 12:30
Affiliato
Industriale Castiglione Srl
Viale Cavour, 9 46043 Castiglione Delle Stiviere (MN)

2025 Tecnocasa Franchising S.p.A. - P. IVA 08365160152 - Via Monte Bianco 60/A 20089 Rozzano (MI). Ogni agenzia ha un proprio titolare ed è autonoma. Privacy policy | Policy utilizzo | Cookie policy