Negozio in affitto

Canneto Sull'Oglio, Via Enrico Tazzoli
€ 1.000 / mese
6 locali 6 locali
200 Mq 200 Mq
4 bagni 4 bagni

Negozio in affitto

Canneto Sull'Oglio, Via Enrico Tazzoli

Descrizione annuncio

COSA SAPERE SULL'IMMOBILE

Proponiamo in locazione spazio commerciale direttamente fronte strada provinciale a Canneto Sull'Oglio, in Via Tazzoli.

DESCRIZIONE E PARTICOLARITÀ

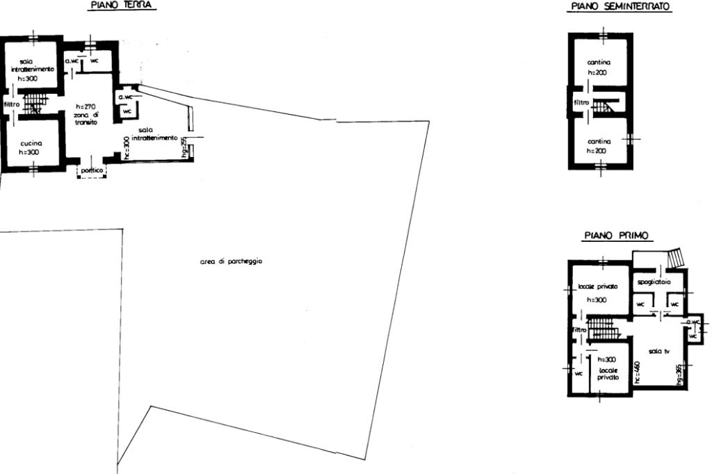
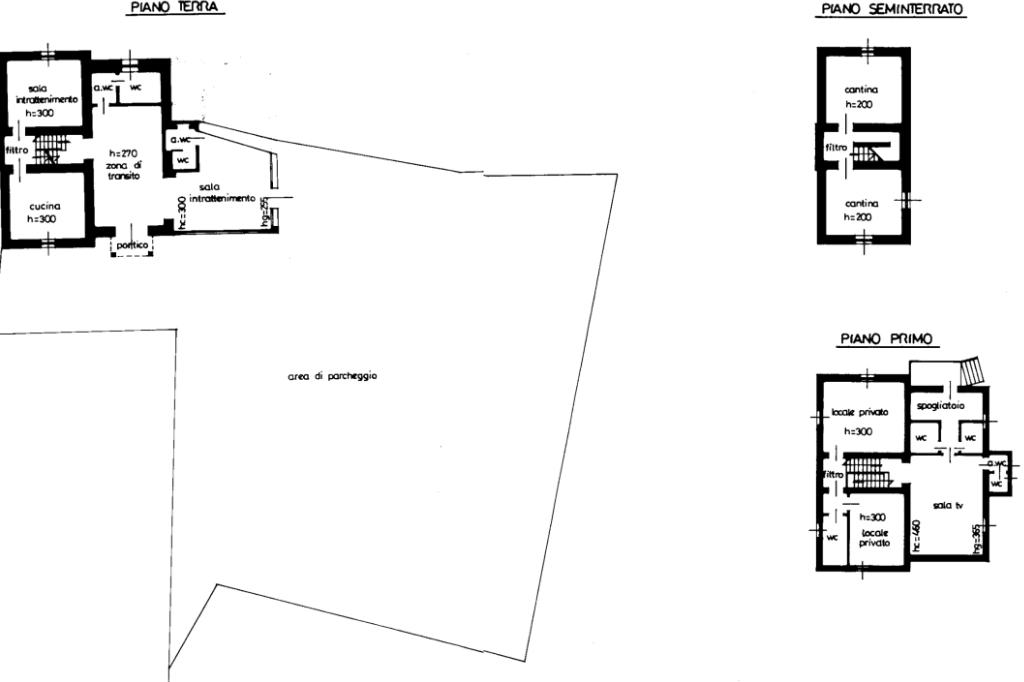
La soluzione in oggetto si sviluppa su tre livelli ed è così composta:

- PIANO TERRA: circa 70 mq adibiti a deposito/magazzino

- PIANO TERRA: cortile esclusivo e parcheggio

- PIANO PRIMO: circa 70 mq commerciali

- PIANO SECONDO: circa 60 mq commerciali/residenziali

L'immobile in oggetto è ideale per l'insediamento di attività di pizzeria - ristorante - pub poiché la predisposizione dei locali, degli impianti, l'attrezzatura e arredamento sono già presenti.

All'esterno è presente un cortile di proprietà oltre a un piccolo portico e giardino privato da destinarsi a parcheggio.

- 6 locali;

- Altezza interna 3 m;

- 4 servizi igienici dotati di doccia e spogliatoio;

- Cucina con canna fumaria;

- Completo di impianti: illuminazione, elettrico, riscaldamento e raffreddamento;

- Numerosi posti auto esterni;

UBICAZIONE E CONTESTO

Canneto sull'Oglio è un comune italiano di 4 230 abitanti della provincia di Mantova in Lombardia. La posizione dove è collocato l'immobile è comoda a tutte le principali arterie stradali della zona.

Si trova nelle vicinanze dei comuni di Acquanegra sul Chiese, Piadena Drizzona i Casalromano, Canneto sull'Oglio è situata a 28 km al Nord-Ovest di Viadana la più grande città nelle vicinanze.

Mostra tutto

Nelle vicinanze

Trasporto pubblico Trasporto pubblico
Canneto sull'Oglio
Canneto sull'Oglio
360 m
Piadena
Piadena
2,2 Km
Trasporto pubblico
2,0 Km
Ricariche auto elettriche Ricariche auto elettriche
Ristorante Dal Pescatore
2,9 Km
Scuole Scuole
Scuola dell'Infanzia di Canneto sull'Oglio
1,2 Km
Scuole elementari e medie
1,8 Km
Farmacia Farmacia
Farmacia
1,9 Km
Supermercati Supermercati
Italmark
2,0 Km
Coop
2,0 Km
Bar Bar
Charlys Night Club
70 m
Bar
930 m
Ristoranti Ristoranti
Ristoranti
2,8 Km
Dal Pescatore Santini
2,9 Km
Mostra tutto

Caratteristiche

Rif.:
61002898
Piano:
1 di 1 (Piano su più livelli)
Box:
1
Posti auto:
50
Condizionamento:
Autonomo
Ascensore:
No
Mostra tutto
Prezzo Prezzo
€ 1.000 / mese
Spese annue Spese annue
€ 0

Altre caratteristiche

Descrizione dei locali
Bagno Con Finestra

Classe Energetica

Questo immobile è esente da classe energetica
Anno di costruzione:
1990
Riscaldamento:
Autonomo
Tipo impianto:
A radiatori
Tipo alimentazione:
Metano

Ti interessa visionare l'immobile?

Fissa un appuntamento  Fissa un appuntamento

Richiedi informazioni

Clicca su Leggi per aprire l'informativa
* Questi campi sono obbligatori
Affiliato
Industriale Castiglione Srl
Viale Cavour, 19 46043 Castiglione Delle Stiviere (MN)

Il nostro staff


  • Francesca Lanzini
    Affiliata

  • Nitesh Bhatti
    Collaboratore

  • Cristian Binetti
    Collaboratore

  • Giovanni Lucignano
    Collaboratore

  • Nicola Monaco
    Affiliato

  • Oxana Sirelli
    Affiliata

  • Jessica Stancato
    Coordinatrice

  • Claudio Valecci
    Affiliato
Viale Cavour, 19 46043 Castiglione Delle Stiviere (MN)
Zona: Castiglione D/S-Montichiari-Carpenedolo-Calcinato-Ponte San Marco
Mostra su mappa
Orari: Lunedì - Venerdì: 8:30 - 12.30 / 14:30 - 19:30 Sabato: 8:30 - 12:30
Affiliato
Industriale Castiglione Srl
Viale Cavour, 19 46043 Castiglione Delle Stiviere (MN)

2026 Tecnocasa Franchising S.p.A. - P. IVA 08365160152 - Via Monte Bianco 60/A 20089 Rozzano (MI). Ogni agenzia ha un proprio titolare ed è autonoma. Privacy policy | Policy utilizzo | Cookie policy