Capannone in affitto

Casalromano, Via dei Tigli
€ 2.800 / mese
4 locali 4 locali
1500 Mq 1500 Mq
2 bagni 2 bagni

Capannone in affitto

Casalromano, Via dei Tigli

Descrizione annuncio

DESCRIZIONE E PARTICOLARITA’

Proponiamo in locazione una soluzione industriale sita nel comune di Casalromano, più precisamente in via Dei Tigli.

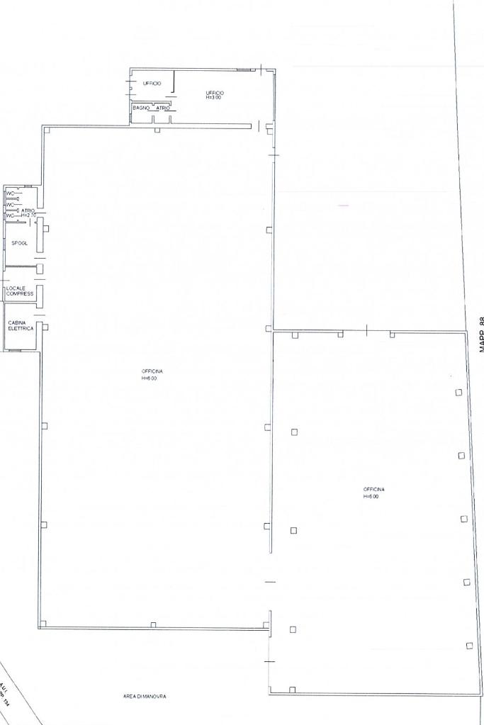
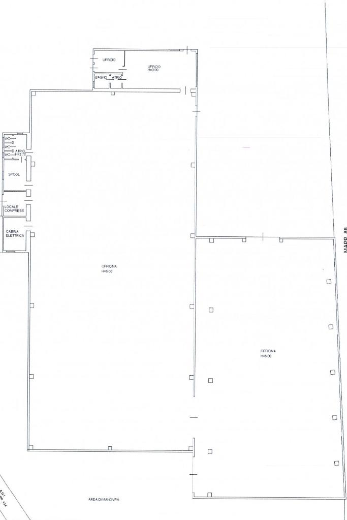
La soluzione è composta da due corpi di fabbrica per una superficie complessiva di circa 1.500 mq ed è composta da corpo A sviluppato su una superficie di 860 mq destinato ad area produttiva oltre a 50 mq di uffici, mentre il corpo B dispone di 570 mq di superficie.

L’immobile si presenta in buone condizioni, parzialmente arredato e pronto all’uso.

Caratteristiche principali:

- Altezza interna 6 metri

- Presenza di pilastri

- Presenza di mensole nel solo corpo A

- Due accessi carrai con portoni alti 5 metri

- Riscaldamento e condizionamento presenti nella zona uffici

- Pozzo e cabina elettrica di proprietà

- 2 bagni a norma disabili, doccia e spogliatoio

- Impianto elettrico e di illuminazione funzionanti

- Luci e uscite d’emergenza, porta tagliafuoco

- Impianto aria compressa

- Portineria e proprietà completamente recintata

- Copertura in eternit con controsoffitto

Una soluzione completa e versatile, ideale per aziende che necessitano di ampie superfici produttive, uffici funzionali e spazi già attrezzati.

UBICAZIONE E CONTESTO

L'edificio sorge all'inizio della zona industriale di Casal Romano, alla quale si accede direttamente dalla principale strada che lo attraversa la Bassa Mantovana. Risulta ben collegato alle principali arterie stradali della zona e ben collegato ad arterie di scambio commerciale tra le provincie di Milano, Bergamo, Cremona, Brescia, Mantova e Verona. Inoltre, il casello autostradale di Brescia Est dell'autostrada A4 Milano - Venezia dista soli quindici chilometri.

Mostra tutto

Nelle vicinanze

Trasporto pubblico Trasporto pubblico
Trasporto pubblico
890 m
Ristoranti Ristoranti
Ristoranti
2,5 Km
Mostra tutto

Caratteristiche

Rif.:
61126914
Piano:
Terra di 1
Totale piani:
1
Posti auto:
10
Condizionamento:
Autonomo
Ascensore:
No
Mostra tutto
Prezzo Prezzo
€ 2.800 / mese
Spese annue Spese annue
€ 0

Altre caratteristiche

Descrizione dei locali
Bagno Con Finestra

Classe Energetica

Questo immobile è esente da classe energetica
Anno di costruzione:
1990
Riscaldamento:
Autonomo
Tipo impianto:
A radiatori
Tipo alimentazione:
Metano

Ti interessa visionare l'immobile?

Fissa un appuntamento  Fissa un appuntamento

Richiedi informazioni

Clicca su Leggi per aprire l'informativa
* Questi campi sono obbligatori
Affiliato
Industriale Castiglione Srl
Viale Cavour, 19 46043 Castiglione Delle Stiviere (MN)

Il nostro staff


  • Francesca Lanzini
    Affiliata

  • Nitesh Bhatti
    Collaboratore

  • Cristian Binetti
    Collaboratore

  • Giovanni Lucignano
    Collaboratore

  • Nicola Monaco
    Affiliato

  • Oxana Sirelli
    Affiliata

  • Jessica Stancato
    Coordinatrice

  • Claudio Valecci
    Affiliato
Viale Cavour, 19 46043 Castiglione Delle Stiviere (MN)
Zona: Castiglione D/S-Montichiari-Carpenedolo-Calcinato-Ponte San Marco
Mostra su mappa
Orari: Lunedì - Venerdì: 8:30 - 12.30 / 14:30 - 19:30 Sabato: 8:30 - 12:30
Affiliato
Industriale Castiglione Srl
Viale Cavour, 19 46043 Castiglione Delle Stiviere (MN)

2026 Tecnocasa Franchising S.p.A. - P. IVA 08365160152 - Via Monte Bianco 60/A 20089 Rozzano (MI). Ogni agenzia ha un proprio titolare ed è autonoma. Privacy policy | Policy utilizzo | Cookie policy