Capannone in vendita

Casalromano, Via Roma
€ 550.000
8 locali 8 locali
8700 Mq 8700 Mq

Capannone in vendita

Casalromano, Via Roma

Descrizione annuncio

DESCRIZIONE E PARTICOLARITA’

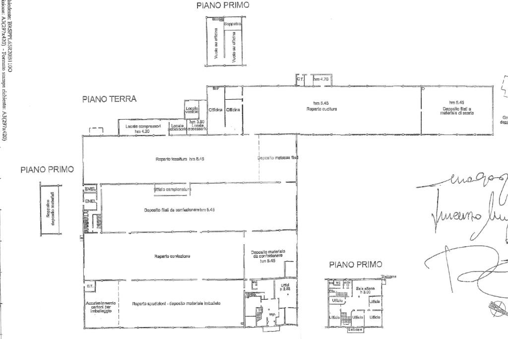
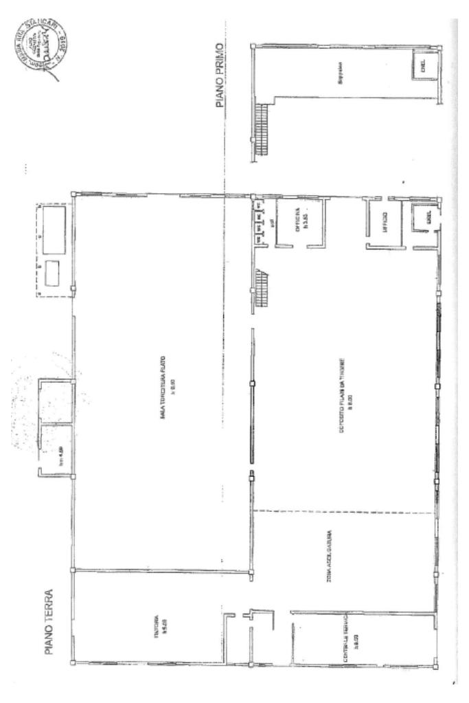
Proponiamo in vendita complesso industriale ubicato nel Comune di Casalromano (MN), più precisamente in via Roma.

L’immobile è costituito da un opificio industriale su una superficie coperta complessiva di circa 8.700 mq e dispone di un’area di pertinenza industriale di circa 13.130 mq e di un terreno circostante di ulteriori 3.760 mq.

L’intera proprietà risulta completamente recintata.

Il compendio immobiliare è composto da due corpi di fabbrica principali e da una palazzina uffici, come di seguito specificato:

- Corpo di fabbrica n. 1: edificato nel 1968, con superficie di circa 2.150 mq;

- Corpo di fabbrica n. 2: edificato nel 1978, con superficie di circa 6.000 mq;

- Palazzina uffici: superficie complessiva di circa 540 mq.

L’intero complesso necessita di interventi di ristrutturazione e ammodernamento, ma si presenta idoneo per attività produttive, logistiche o artigianali.

La soluzione, grazie all’ampia superficie coperta e scoperta disponibile, si presta a diverse configurazioni d’uso nell’ambito industriale.

UBICAZIONE E CONTESTO

Il fabbricato si trova nel comune di Casalromano, il paese più occidentale della provincia di Mantova e dista circa 42 km dal capoluogo. L’immobile si trova sulla SP, zona di forte passaggio.

Mostra tutto

Nelle vicinanze

Trasporto pubblico Trasporto pubblico
Trasporto pubblico
810 m
Ricariche auto elettriche Ricariche auto elettriche
Ristorante Dal Pescatore
2,7 Km
Ristoranti Ristoranti
Dal Pescatore Santini
2,7 Km
Mostra tutto

Caratteristiche

Rif.:
61127811
Piano:
Terra di 1
Totale piani:
1
Condizionamento:
Assente
Ascensore:
No
Riscaldamento:
Assente
Mostra tutto
Prezzo Prezzo
€ 550.000
Rata mutuo Rata mutuo
€ 2.563 / mese
Spese annue Spese annue
€ 0
Proponi il tuo prezzoProponi il tuo prezzo

Altre caratteristiche

Descrizione dei locali
Bagno Con Finestra

Classe Energetica

Questo immobile è esente da classe energetica
Anno di costruzione:
1970
Riscaldamento:
Assente

Ti interessa visionare l'immobile?

Fissa un appuntamento  Fissa un appuntamento

Richiedi informazioni

Clicca su Leggi per aprire l'informativa
* Questi campi sono obbligatori

Calcola il tuo mutuo

Semplice e senza impegno
Anticipo

( % )
Mutuo

( % )

pochi semplici passi

inserisci i tuoi dati
Questionario completato
Grazie per aver richiesto un appuntamento senza impegno con un nostro Consulente del Credito e Assicurativo.

Hai inserito correttamente tutti i dati necessari e a breve riceverai una e-mail con un link da convalidare per inviare i tuoi dati.
Affiliato
Industriale Castiglione Srl
Viale Cavour, 9 46043 Castiglione Delle Stiviere (MN)

Il nostro staff


  • Francesca Lanzini
    Affiliata

  • Cristian Binetti
    Collaboratore

  • Giovanni Lucignano
    Collaboratore

  • Nicola Monaco
    Affiliato

  • Oxana Sirelli
    Affiliata

  • Jessica Stancato
    Coordinatrice

  • Claudio Valecci
    Affiliato
Viale Cavour, 9 46043 Castiglione Delle Stiviere (MN)
Zona: Castiglione D/S-Montichiari-Carpenedolo-Calcinato-Ponte San Marco
Mostra su mappa
Orari: Lunedì - Venerdì: 8:30 - 12.30 / 14:30 - 19:30 Sabato: 8:30 - 12:30
Affiliato
Industriale Castiglione Srl
Viale Cavour, 9 46043 Castiglione Delle Stiviere (MN)

2025 Tecnocasa Franchising S.p.A. - P. IVA 08365160152 - Via Monte Bianco 60/A 20089 Rozzano (MI). Ogni agenzia ha un proprio titolare ed è autonoma. Privacy policy | Policy utilizzo | Cookie policy