Capannone in vendita

Guidizzolo, Via Tomasina
€ 190.000
4 locali 4 locali
1940 Mq 1940 Mq

Capannone in vendita

Guidizzolo, Via Tomasina

Descrizione annuncio

DESCRIZIONE E PARTICOLARITÀ

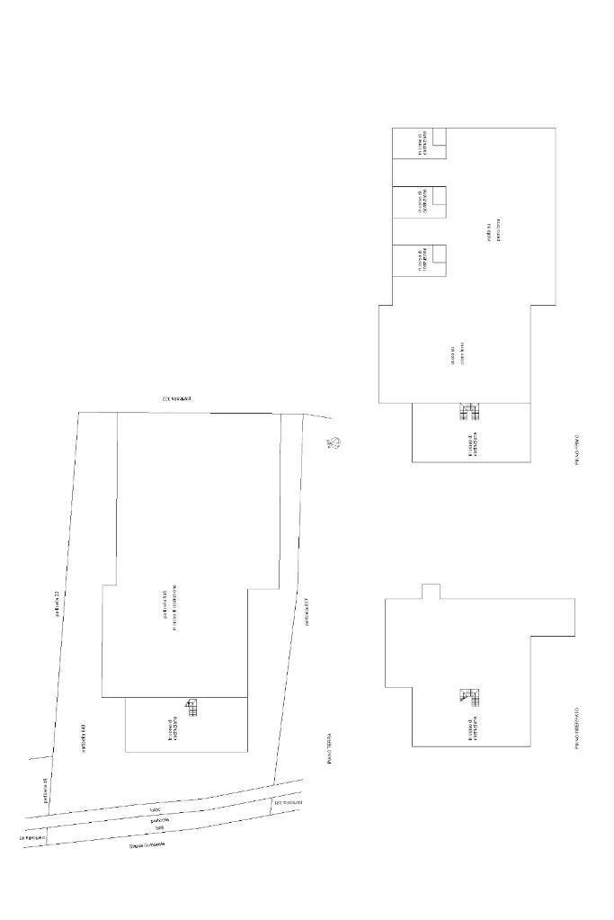
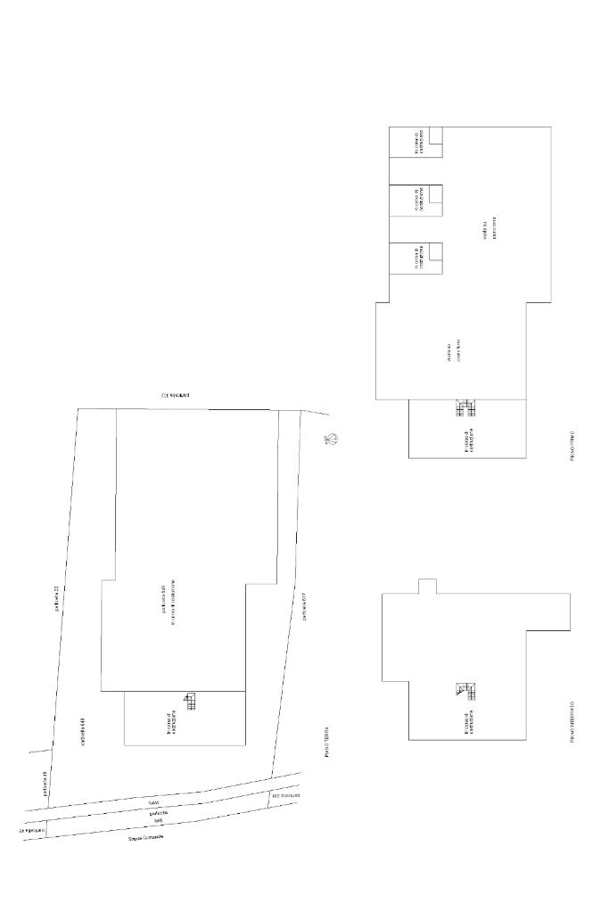
Proponiamo in vendita capannone al rustico situato su un ampio lotto di 3.000 mq complessivi nel comune di Guidizzolo, più precisamente in via Tomasina.

La struttura si sviluppa in questo modo:

- 1.440 mq al piano centrale, ideali per attività produttive, artigianali o logistiche

- 500 mq al piano interrato, perfetti come magazzino o area tecnica

- 1.000 mq di area esterna utile per movimentazione mezzi, parcheggio o ampliamenti futuri

L’edificio dispone di un’altezza interna di 6 metri e di un comodo accesso carraio, che facilita l’ingresso anche a mezzi pesanti.

La soluzione, attualmente allo stato grezzo, rappresenta un’ottima opportunità per chi cerca uno spazio da personalizzare secondo le proprie esigenze.

UBICAZIONE E CONTESTO

Guidizzolo è un comune italiano di 5.966 abitanti della provincia di Mantova in Lombardia.

Fa parte dei comuni dell'Alto Mantovano. È ubicato ai piedi delle Colline Moreniche è stato per diversi anni oggetto di contesa tra le Signorie di Mantova e Brescia, le risorse artistiche e culturali di Guidizzolo si racchiudono nel piccolo centro storico.

Mostra tutto

Nelle vicinanze

Scuole Scuole
Scuola Secondaria di primo grado "Fortunati"
1,2 Km
Scuola Elementare
2,7 Km
Supermercati Supermercati
Family Market
1,0 Km
Negozi Negozi
Sbalzarini
2,9 Km
Ristoranti Ristoranti
La Piazzetta
690 m
Ristoranti
1,4 Km
Pizzeria Trattoria Fantasy
1,9 Km
Ristorante Crocevia
2,9 Km
La Scaletta di Medole
2,9 Km
Mostra tutto

Caratteristiche

Rif.:
61111548
Piano:
Su più livelli di 2
Totale piani:
2
Condizionamento:
Assente
Ascensore:
No
Riscaldamento:
Assente
Mostra tutto
Prezzo Prezzo
€ 190.000
Rata mutuo Rata mutuo
€ 887 / mese
Proponi il tuo prezzoProponi il tuo prezzo

Altre caratteristiche

Descrizione dei locali
Bagno Con Finestra

Classe Energetica

Questo immobile è esente da classe energetica
Anno di costruzione:
1980
Riscaldamento:
Assente

Ti interessa visionare l'immobile?

Fissa un appuntamento  Fissa un appuntamento

Richiedi informazioni

Clicca su Leggi per aprire l'informativa
* Questi campi sono obbligatori

Calcola il tuo mutuo

Semplice e senza impegno
Anticipo

( % )
Mutuo

( % )

pochi semplici passi

inserisci i tuoi dati
Questionario completato
Grazie per aver richiesto un appuntamento senza impegno con un nostro Consulente del Credito e Assicurativo.

Hai inserito correttamente tutti i dati necessari e a breve riceverai una e-mail con un link da convalidare per inviare i tuoi dati.
Affiliato
Industriale Castiglione Srl
Viale Cavour, 19 46043 Castiglione Delle Stiviere (MN)

Il nostro staff


  • Francesca Lanzini
    Affiliata

  • Nitesh Bhatti
    Collaboratore

  • Cristian Binetti
    Collaboratore

  • Giovanni Lucignano
    Collaboratore

  • Lorenzo Migliorelli
    Collaboratore

  • Nicola Monaco
    Affiliato

  • Oxana Sirelli
    Affiliata

  • Jessica Stancato
    Coordinatrice

  • Valentina Sozzi
    Coordinatrice

  • Claudio Valecci
    Affiliato
Viale Cavour, 19 46043 Castiglione Delle Stiviere (MN)
Zona: Castiglione D/S-Montichiari-Carpenedolo-Calcinato-Ponte San Marco
Mostra su mappa
Orari: Lunedì - Venerdì: 8:30 - 12.30 / 14:30 - 19:30 Sabato: 8:30 - 12:30
Affiliato
Industriale Castiglione Srl
Viale Cavour, 19 46043 Castiglione Delle Stiviere (MN)

2026 Tecnocasa Franchising S.p.A. - P. IVA 08365160152 - Via Monte Bianco 60/A 20089 Rozzano (MI). Ogni agenzia ha un proprio titolare ed è autonoma. Privacy policy | Policy utilizzo | Cookie policy