Terreno in vendita

Medole, VIa Crocevia - Crocevia
€ 1.120.000
1 locale 1 locale
16000 Mq 16000 Mq

Terreno in vendita

Medole, VIa Crocevia - Crocevia

Questo immobile appartiene ad un'unità principale con metratura più ampia

Descrizione annuncio

DESCRIZIONE E PARTICOLARITA'

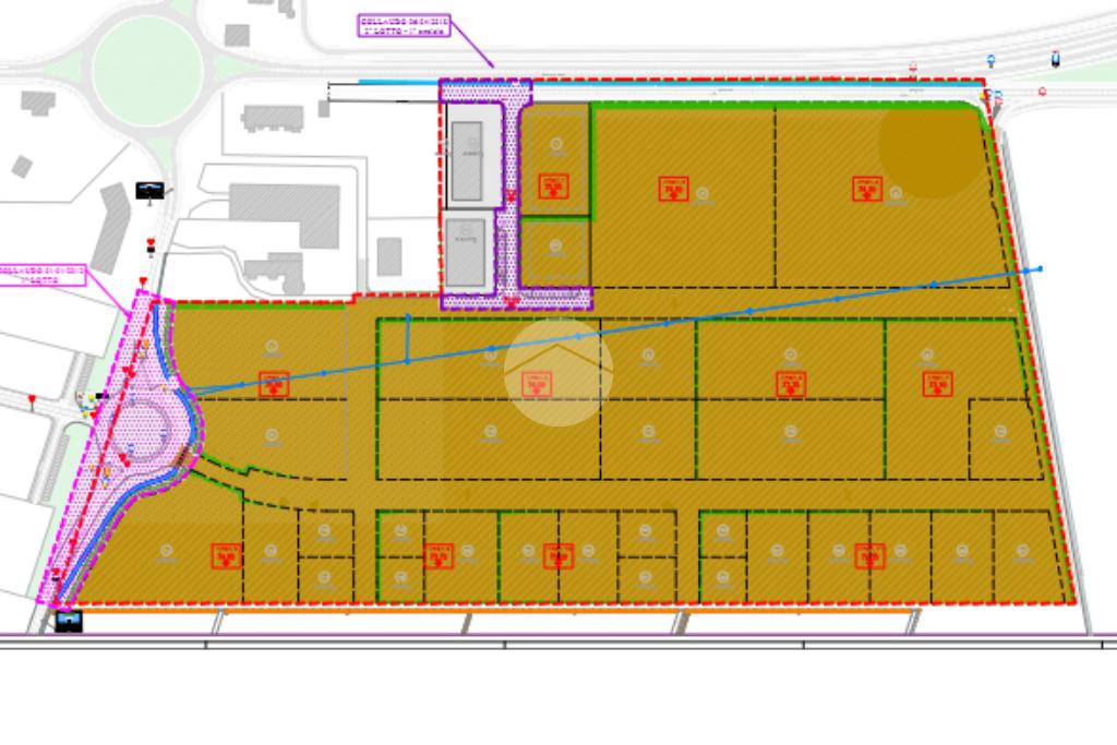
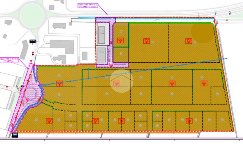
Proponiamo in vendita un lotto di area edificabile a destinazione d’uso artigianale/industriale con superficie pari a 16.000 mq circa, ubicato nel paese di Medole, più precisamente in Strada per Crocevia.

Il terreno in oggetto presenta un indice di edificabilità pari al 80% della superfice, con un’altezza massima di costruzione pari a 11 metri sotto trave; inoltre è comprensivo di oneri di urbanizzazione.

UBICAZIONE E CONTESTO

Medole è un piccolo comune di 4.117 abitanti situato nella provincia di Mantova, in Lombardia, nella pianura padana. È noto per la sua tranquillità, il paesaggio agricolo circostante e le tradizioni locali. La città si trova lungo il corso del fiume Mincio, ed è caratterizzata da edifici storici, come la chiesa parrocchiale di San Giovanni Battista

Il paese dista circa 35 km da Mantova, 33 km da Brescia, 55 km da Cremona e 45 km da Verona.

Mostra tutto

Nelle vicinanze

Trasporto pubblico Trasporto pubblico
Trasporto pubblico
2,4 Km
Farmacia Farmacia
Farmacia Medole
540 m
Ristoranti Ristoranti
Ristorante Crocevia
2,0 Km
La Scaletta di Medole
2,1 Km
Mostra tutto

Caratteristiche

Rif.:
61135949
Piano:
Terra con giardino
Condizionamento:
Assente
Ascensore:
No
Riscaldamento:
Assente
Giardino:
Privato
Mostra tutto
Prezzo Prezzo
€ 1.120.000
Rata mutuo Rata mutuo
€ 5.230 / mese
Spese annue Spese annue
€ 0
Proponi il tuo prezzoProponi il tuo prezzo

Altre caratteristiche

Descrizione dei locali
Bagno Con Finestra

Classe Energetica

Questo immobile è esente da classe energetica
Anno di costruzione:
1980
Riscaldamento:
Assente

Ti interessa visionare l'immobile?

Fissa un appuntamento  Fissa un appuntamento

Richiedi informazioni

Clicca su Leggi per aprire l'informativa
* Questi campi sono obbligatori

Calcola il tuo mutuo

Semplice e senza impegno
Anticipo

( % )
Mutuo

( % )

pochi semplici passi

inserisci i tuoi dati
Questionario completato
Grazie per aver richiesto un appuntamento senza impegno con un nostro Consulente del Credito e Assicurativo.

Hai inserito correttamente tutti i dati necessari e a breve riceverai una e-mail con un link da convalidare per inviare i tuoi dati.
Affiliato
Industriale Castiglione Srl
Viale Cavour, 19 46043 Castiglione Delle Stiviere (MN)

Il nostro staff


  • Francesca Lanzini
    Affiliata

  • Nitesh Bhatti
    Collaboratore

  • Cristian Binetti
    Collaboratore

  • Giovanni Lucignano
    Collaboratore

  • Lorenzo Migliorelli
    Collaboratore

  • Nicola Monaco
    Affiliato

  • Oxana Sirelli
    Affiliata

  • Jessica Stancato
    Coordinatrice

  • Valentina Sozzi
    Coordinatrice

  • Claudio Valecci
    Affiliato
Viale Cavour, 19 46043 Castiglione Delle Stiviere (MN)
Zona: Castiglione D/S-Montichiari-Carpenedolo-Calcinato-Ponte San Marco
Mostra su mappa
Orari: Lunedì - Venerdì: 8:30 - 12.30 / 14:30 - 19:30 Sabato: 8:30 - 12:30
Affiliato
Industriale Castiglione Srl
Viale Cavour, 19 46043 Castiglione Delle Stiviere (MN)

2026 Tecnocasa Franchising S.p.A. - P. IVA 08365160152 - Via Monte Bianco 60/A 20089 Rozzano (MI). Ogni agenzia ha un proprio titolare ed è autonoma. Privacy policy | Policy utilizzo | Cookie policy