Negozio in vendita

Montichiari, Via A. Mazzoldi
€ 100.000
2 locali 2 locali
125 Mq 125 Mq
1 bagno 1 bagno

Negozio in vendita

Montichiari, Via A. Mazzoldi

Descrizione annuncio

DESCRIZIONE E PARTICOLARITÀ

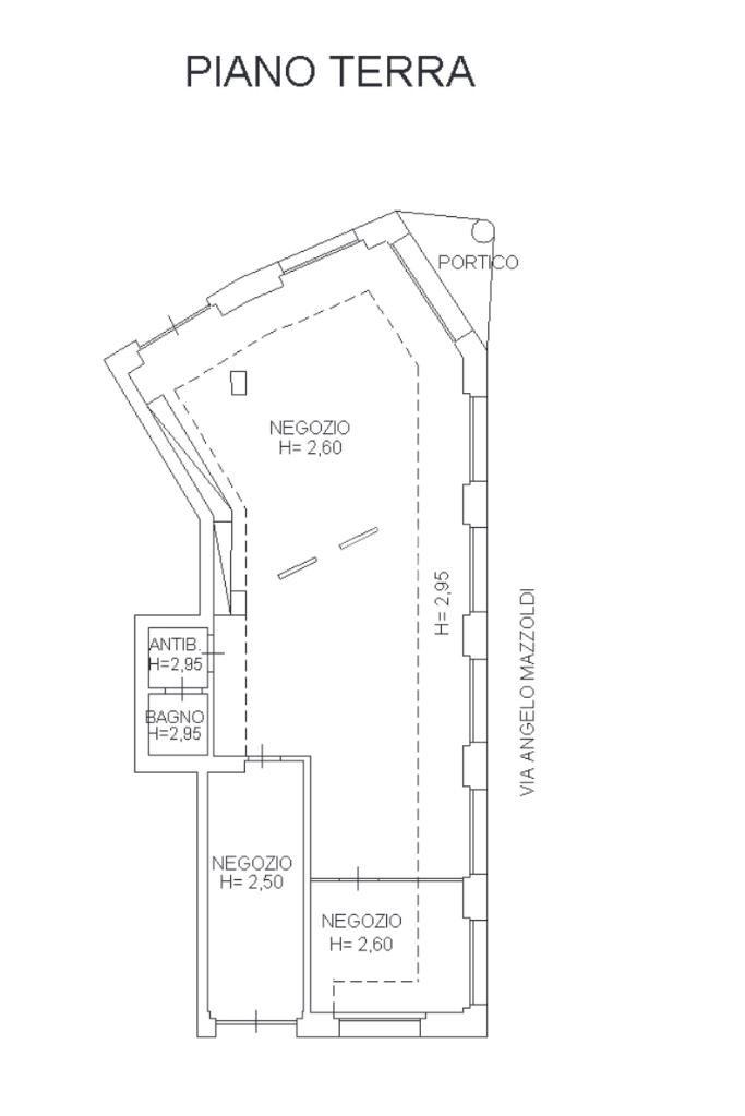
Proponiamo in vendita un interessante locale commerciale, situato in posizione comoda e ben visibile nel paese di Montichiari, precisamente in Via Mazzoldi.

La soluzione si estende su una superficie totale di 125 mq, al piano terra l’immobile offre 94 mq di area commerciale con ampie vetrine su strada, perfette per garantire massima visibilità; al piano interrato, collegato internamente, si trova un garage di 31 mq circa.

L’altezza interna è di 2,6 metri, ideale per ogni tipo di allestimento.

La soluzione è così caratterizzata:

- Completo di impianti (elettrico, illuminazione, condizionamento e riscaldamento);

- Luci d’emergenza;

- Internet banda larga;

- Doppio ingresso e accesso disabili;

- Servizio igienico;

- Numerosi posti auto esterni.

UBICAZIONE E CONTESTO

Il comune di Montichiari dopo il capoluogo Brescia e Desenzano del Garda è il comune più popoloso della provincia ed il settimo per dimensione territoriale; esso sorge in un territorio pianeggiante, con scarsi rilievi collinari, che può essere suddiviso in tre grandi parti: una centrale limitata alla zona in cui le acque del Chiese rendono maggiormente fertile il terreno e altre due, di origine glaciale, caratterizzate da rilievi e dalla maggiore assenza d'acqua. Il suo territorio confina ad est con Castiglione delle Stiviere (MN), a nord-est e nord con Calcinato, a nord-ovest con Castenedolo, a ovest con Ghedi a sud-ovest con Calvisano e a sud-est con Carpenedolo.

Mostra tutto

Nelle vicinanze

Trasporto pubblico Trasporto pubblico
Trasporto pubblico
290 m
Montichiari - S.S. 236 Goitese, Mercato
Montichiari - S.S. 236 Goitese, Mercato
910 m
Ricariche auto elettriche Ricariche auto elettriche
Garda Hotel
840 m
Scuole Scuole
Istituto di Istruzione Superiore Don Milani
370 m
Scuole
1,3 Km
Scuola Primaria Pio X
1,4 Km
Scuola primaria di Vighizzolo
2,8 Km
Farmacia Farmacia
Farmacia Farmacia Ex Prignachi Di Mimini Luigi
630 m
San Pancrazio
810 m
Farmacia Comunale 2
970 m
Farmacia Comunale
1,1 Km
Farmacia Di Lena
1,2 Km
Ospedali Ospedali
Spedali Civili Brescia Montichiari
1,7 Km
Supermercati Supermercati
Coop
790 m
Penny Market
810 m
Famila
910 m
LIDL
1,0 Km
Rossetto
1,4 Km
Negozi Negozi
Panificio Bertoni
380 m
Bertoni
510 m
Maffoni abbigliamento
590 m
Veronica Fashion
620 m
Pasticceria Boifava
630 m
Bar Bar
Caffe Doppio
330 m
Body and soul
510 m
Bar
610 m
Giada's
660 m
My Tay
670 m
Ristoranti Ristoranti
Il Toscano
290 m
La trattoria da Nicola e Salvatore
540 m
Carpe Diem
540 m
Osteria Antica Colombina
580 m
Pizzeria Aquila d'oro
660 m
Mostra tutto

Caratteristiche

Rif.:
61129063
Piano:
Terra di 2
Totale piani:
2
Posti auto:
30
Condizionamento:
Autonomo
Ascensore:
No
Mostra tutto
Prezzo Prezzo
€ 100.000
Rata mutuo Rata mutuo
€ 471 / mese
Spese annue Spese annue
€ 0
Proponi il tuo prezzoProponi il tuo prezzo

Altre caratteristiche

Descrizione dei locali
Bagno Con Finestra

Classe Energetica

Questo immobile è esente da classe energetica
Anno di costruzione:
1980
Riscaldamento:
Autonomo
Tipo impianto:
Ad aria
Tipo alimentazione:
Aria

Ti interessa visionare l'immobile?

Fissa un appuntamento  Fissa un appuntamento

Richiedi informazioni

Clicca su Leggi per aprire l'informativa
* Questi campi sono obbligatori

Calcola il tuo mutuo

Semplice e senza impegno
Anticipo

( % )
Mutuo

( % )

pochi semplici passi

inserisci i tuoi dati
Questionario completato
Grazie per aver richiesto un appuntamento senza impegno con un nostro Consulente del Credito e Assicurativo.

Hai inserito correttamente tutti i dati necessari e a breve riceverai una e-mail con un link da convalidare per inviare i tuoi dati.
Affiliato
Industriale Castiglione Srl
Viale Cavour, 19 46043 Castiglione Delle Stiviere (MN)

Il nostro staff


  • Francesca Lanzini
    Affiliata

  • Cristian Binetti
    Collaboratore

  • Giovanni Lucignano
    Collaboratore

  • Nicola Monaco
    Affiliato

  • Oxana Sirelli
    Affiliata

  • Jessica Stancato
    Coordinatrice

  • Claudio Valecci
    Affiliato
Viale Cavour, 19 46043 Castiglione Delle Stiviere (MN)
Zona: Castiglione D/S-Montichiari-Carpenedolo-Calcinato-Ponte San Marco
Mostra su mappa
Orari: Lunedì - Venerdì: 8:30 - 12.30 / 14:30 - 19:30 Sabato: 8:30 - 12:30
Affiliato
Industriale Castiglione Srl
Viale Cavour, 19 46043 Castiglione Delle Stiviere (MN)

2026 Tecnocasa Franchising S.p.A. - P. IVA 08365160152 - Via Monte Bianco 60/A 20089 Rozzano (MI). Ogni agenzia ha un proprio titolare ed è autonoma. Privacy policy | Policy utilizzo | Cookie policy