Negozio in vendita

Montichiari, Via Cesare Battisti
1 locale 1 locale
120 Mq 120 Mq
1 bagno 1 bagno

Negozio in vendita

Montichiari, Via Cesare Battisti

Descrizione annuncio

DESCRIZIONE E PARTICOLARITÀ

Proponiamo in vendita locale commerciale ubicato nel cuore del paese di Montichiari (BS), Più precisamente in Via Cesare Battisti.

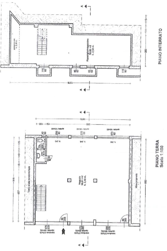
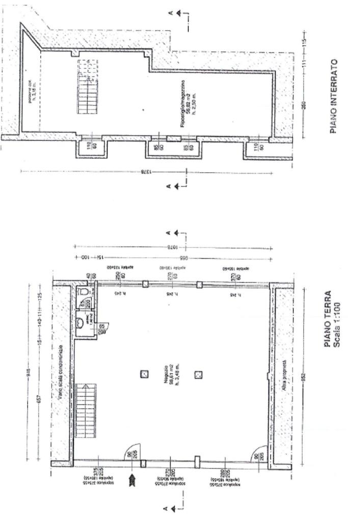
La soluzione, recentemente ristrutturata nel 2020, si sviluppa su due livelli, al piano terra superficie commerciale di 100 mq, al piano interrato superficie ad uso magazzino di 40 mq.

Caratteristiche principali:

- 2 Locali;

- Impianto di riscaldamento e condizionamento autonomi;

- Impianto d’illuminazione ed elettrico;

- Affaccio esterno;

- 3 vetrine fronte strada;

- Servizio igienico;

- Numerosi parcheggi esterni;

- Spese condominiali 145,00 € / mese con utenza acqua compresa.

LIBERO SUBITO

UBICAZIONE E CONTESTO

Il Comune di Montichiari dopo il capoluogo Brescia e Desenzano del Garda è il comune più popoloso della provincia ed il settimo per dimensione territoriale; esso sorge in un territorio pianeggiante, con scarsi rilievi collinari, che può essere suddiviso in tre grandi parti: una centrale limitata alla zona in cui le acque del Chiese rendono maggiormente fertile il terreno e altre due, di origine glaciale, caratterizzate da rilievi e dalla maggiore assenza d'acqua. Il suo territorio confina ad est con Castiglione delle Stiviere (MN), a nord-est e nord con Calcinato, a nord-ovest con Castenedolo, a ovest con Ghedi a sud-ovest con Calvisano e a sud-est con Carpenedolo.

Mostra tutto

Nelle vicinanze

Trasporto pubblico Trasporto pubblico
Trasporto pubblico
580 m
Montichiari - S.S. 236 Goitese, Mercato
Montichiari - S.S. 236 Goitese, Mercato
1,5 Km
Ricariche auto elettriche Ricariche auto elettriche
Garda Hotel
1,5 Km
Scuole Scuole
Istituto di Istruzione Superiore Don Milani
610 m
Scuole
730 m
Scuola Primaria Pio X
750 m
Farmacia Farmacia
San Pancrazio
110 m
Farmacia Farmacia Ex Prignachi Di Mimini Luigi
360 m
Farmacia Di Lena
490 m
Farmacia Comunale
880 m
Farmacia Comunale 2
1,6 Km
Ospedali Ospedali
Spedali Civili Brescia Montichiari
1,1 Km
Supermercati Supermercati
Penny Market
160 m
Coop
220 m
LIDL
330 m
Rossetto
650 m
Famila
1,6 Km
Negozi Negozi
Checkpoint
220 m
Pasticceria Boifava
230 m
Veronica Fashion
260 m
Maffoni abbigliamento
280 m
Panificio Bertoni
380 m
Bar Bar
Spritz Chiosco Bar
150 m
Bar
330 m
Giada's
330 m
Gelateria Mozart
350 m
My Tay
570 m
Ristoranti Ristoranti
Faro
140 m
Tavolamica
140 m
Ristorante Bar Pizzeria Al cervo
250 m
La Bottega dei Sapori
270 m
Osteria Antica Colombina
270 m
Mostra tutto

Caratteristiche

Rif.:
61129555
Piano:
1 di 2 (Piano su più livelli)
Posti auto:
20
Condizionamento:
Autonomo
Ascensore:
No
Riscaldamento:
Autonomo
Mostra tutto
Prezzo Prezzo
€ 160.000
Rata mutuo Rata mutuo
€ 755 / mese
Spese annue Spese annue
€ 1.740
Anche in affitto a
Proponi il tuo prezzoProponi il tuo prezzo

Altre caratteristiche

Descrizione dei locali
Bagno Con Finestra

Classe Energetica

Questo immobile è esente da classe energetica
Anno di costruzione:
1970
Riscaldamento:
Autonomo
Tipo impianto:
A radiatori
Tipo alimentazione:
Metano

Ti interessa visionare l'immobile?

Fissa un appuntamento  Fissa un appuntamento

Richiedi informazioni

Clicca su Leggi per aprire l'informativa
* Questi campi sono obbligatori

Calcola il tuo mutuo

Semplice e senza impegno
Anticipo

( % )
Mutuo

( % )

pochi semplici passi

inserisci i tuoi dati
Questionario completato
Grazie per aver richiesto un appuntamento senza impegno con un nostro Consulente del Credito e Assicurativo.

Hai inserito correttamente tutti i dati necessari e a breve riceverai una e-mail con un link da convalidare per inviare i tuoi dati.
Affiliato
Industriale Castiglione Srl
Viale Cavour, 19 46043 Castiglione Delle Stiviere (MN)

Il nostro staff


  • Francesca Lanzini
    Affiliata

  • Cristian Binetti
    Collaboratore

  • Giovanni Lucignano
    Collaboratore

  • Nicola Monaco
    Affiliato

  • Oxana Sirelli
    Affiliata

  • Jessica Stancato
    Coordinatrice

  • Claudio Valecci
    Affiliato
Viale Cavour, 19 46043 Castiglione Delle Stiviere (MN)
Zona: Castiglione D/S-Montichiari-Carpenedolo-Calcinato-Ponte San Marco
Mostra su mappa
Orari: Lunedì - Venerdì: 8:30 - 12.30 / 14:30 - 19:30 Sabato: 8:30 - 12:30
Affiliato
Industriale Castiglione Srl
Viale Cavour, 19 46043 Castiglione Delle Stiviere (MN)

2025 Tecnocasa Franchising S.p.A. - P. IVA 08365160152 - Via Monte Bianco 60/A 20089 Rozzano (MI). Ogni agenzia ha un proprio titolare ed è autonoma. Privacy policy | Policy utilizzo | Cookie policy