Ufficio in vendita

Volta Mantovana, Viale Risorgimento
€ 420.000
9 locali 9 locali
320 Mq 320 Mq
2 bagni 2 bagni

Ufficio in vendita

Volta Mantovana, Viale Risorgimento

Descrizione annuncio

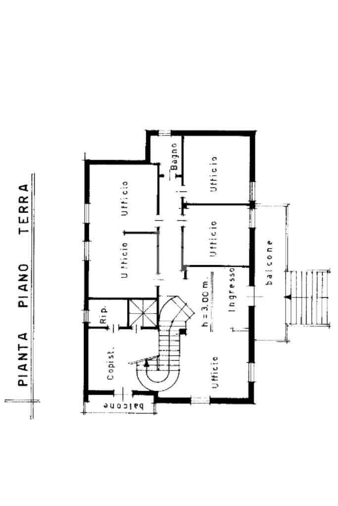
DESCRIZIONE E PARTICOLARITÀ

Proponiamo in vendita ampia soluzione indipendente nel paese di Volta Mantovana, più precisamente in Viale Risorgimento.

La soluzione si estende su una superficie totale di 320 mq sviluppata su tre livelli: al piano terra e al secondo piano si sviluppano due spazi di circa 110 mq ciascuno, ideali per studi professionali, uffici o attività direzionali; il piano interrato, di 100 mq, è destinato ad archivio o deposito.

La proprietà è dotata di:

- Riscaldamento e condizionamento autonomi

- Doppio ingresso e accesso per persone con disabilità

- Porta blindata

- Due servizi igienici

- Impianti elettrico e di illuminazione a norma

Soluzione versatile e ben distribuita, ideale per chi cerca ambienti professionali moderni e funzionali, in una posizione comoda e servita.

UBICAZIONE E CONTESTO

Volta Mantovana è un comune italiano della provincia di Mantova in Lombardia. Situato nell'Alto Mantovano, dista circa 15 chilometri dal lago di Garda. Il paese si trova in una zona di confine tra tre province (Mantova, Brescia e Verona), precisamente a nord con Monzambano, a est con Valeggio sul Mincio, a sud con Goito e Brescia, ad ovest con Cavriana e Guidizzolo.

Il paese è attraversato dalla strada provinciale 19 Goito-Ponti sul Mincio, mentre la provinciale ex SS 236 Goitese, che collega Brescia a Mantova, lambisce il territorio meridionale del comune attraversando la località Contino.

Nel corso degli ultimi decenni il comune di Volta Mantovana ha conosciuto un notevole sviluppo demografico arrivando ad avere circa 7.221 abitanti.

Mostra tutto

Nelle vicinanze

Trasporto pubblico Trasporto pubblico
Trasporto pubblico
220 m
Scuole Scuole
Istituto Comprensivo Volta Mantovana
750 m
Farmacia Farmacia
Farmacia Comunale di Volta Mantovana
160 m
Farmacia Zavarise
170 m
Farmacia Comunale Cereta
2,7 Km
Ospedali Ospedali
Ospedale Civile di Volta Mantovana s.r.l.
350 m
Supermercati Supermercati
D più
760 m
Martinelli
1,4 Km
Negozi Negozi
pin up abbigliamento
10 m
Creazioni Bimbo
140 m
South Beach
200 m
Stockmania
200 m
Panificio Pezzini
210 m
Bar Bar
L'Officina
50 m
Caffè Garibaldi
100 m
Plaza Café
150 m
Sottovento Di Zielinska Monika Elzbieta
170 m
Bar
240 m
Ristoranti Ristoranti
Miramonti Pizzeria Ristorante
110 m
Tam Tam
190 m
Trattoria La Stangada
210 m
Enoteca Gonzaga
310 m
Hotel Ristorante La Valle
730 m
Mostra tutto

Caratteristiche

Rif.:
61136484
Piano:
1 di 2 (Piano su più livelli)
Posti auto:
10
Condizionamento:
Autonomo
Ascensore:
No
Riscaldamento:
Autonomo
Mostra tutto
Prezzo Prezzo
€ 420.000
Rata mutuo Rata mutuo
€ 1.961 / mese
Spese annue Spese annue
€ 0
Proponi il tuo prezzoProponi il tuo prezzo

Altre caratteristiche

Descrizione dei locali
Bagno Con Finestra

Classe Energetica

Questo immobile è esente da classe energetica
Anno di costruzione:
2000
Riscaldamento:
Autonomo
Tipo impianto:
A radiatori
Tipo alimentazione:
Metano

Ti interessa visionare l'immobile?

Fissa un appuntamento  Fissa un appuntamento

Richiedi informazioni

Clicca su Leggi per aprire l'informativa
* Questi campi sono obbligatori

Calcola il tuo mutuo

Semplice e senza impegno
Anticipo

( % )
Mutuo

( % )

pochi semplici passi

inserisci i tuoi dati
Questionario completato
Grazie per aver richiesto un appuntamento senza impegno con un nostro Consulente del Credito e Assicurativo.

Hai inserito correttamente tutti i dati necessari e a breve riceverai una e-mail con un link da convalidare per inviare i tuoi dati.
Affiliato
Industriale Castiglione Srl
Viale Cavour, 19 46043 Castiglione Delle Stiviere (MN)

Il nostro staff


  • Francesca Lanzini
    Affiliata

  • Nitesh Bhatti
    Collaboratore

  • Cristian Binetti
    Collaboratore

  • Giovanni Lucignano
    Collaboratore

  • Lorenzo Migliorelli
    Collaboratore

  • Nicola Monaco
    Affiliato

  • Oxana Sirelli
    Affiliata

  • Jessica Stancato
    Coordinatrice

  • Valentina Sozzi
    Coordinatrice

  • Claudio Valecci
    Affiliato
Viale Cavour, 19 46043 Castiglione Delle Stiviere (MN)
Zona: Castiglione D/S-Montichiari-Carpenedolo-Calcinato-Ponte San Marco
Mostra su mappa
Orari: Lunedì - Venerdì: 8:30 - 12.30 / 14:30 - 19:30 Sabato: 8:30 - 12:30
Affiliato
Industriale Castiglione Srl
Viale Cavour, 19 46043 Castiglione Delle Stiviere (MN)

2026 Tecnocasa Franchising S.p.A. - P. IVA 08365160152 - Via Monte Bianco 60/A 20089 Rozzano (MI). Ogni agenzia ha un proprio titolare ed è autonoma. Privacy policy | Policy utilizzo | Cookie policy